Zeeburgerkade 700 - Makelaar in Amsterdam
Google review sterren

5.0 op Google

USP vinkje

Uniek concept: MiA methode

USP vinkje

Expert in Amsterdam

USP vinkje

Extensieve kennis van de markt

USP vinkje

Bel ons: 020 845 5878

Amsterdam

Zeeburgerkade 700

  • Asking price: € 599.000 k.k.

Omschrijving

Wake up every day with a beautiful unobstructed view of the Entrepothaven, a view that never gets boring. That is living in the characteristic warehouse ‘Vrijdag’, where history and modern comfort come together. This bright and attractive 3-room apartment, with perpetual leasehold, is divided over two floors and is located on the top floors of this beautiful warehouse. From the living room you look out over the water, and through the French doors you step onto the balcony on the harbor side. On the sunny south-facing roof terrace you can enjoy peace and quiet all day long. With two spacious bedrooms, a bright living room with open kitchen and a quiet location in the popular Eastern Docklands area, this is a unique place to come home to. I would love to invite you for a viewing.

Can’t wait to look inside? Then take a look at the virtual 3D tour on Funda or on our own website and take a digital walk through the entire house.

Property
This maisonette is located on the fourth and fifth floors of the former warehouse “Friday,” which was completely renovated around 1990. Thanks to its location at the top of the building, water views and two outdoor spaces, this is a wonderful place to come home to.

The entrance is on the fourth floor, accessible by elevator through the bright atrium. The living room is spacious and bright, with large windows overlooking the Entrepothaven. Through French doors you step onto the balcony on the waterfront, where you can watch the boats go by all day.
The open kitchen is located on the side of the atrium and is modernly equipped with an induction hob with five cooking zones, an extractor hood, a combination microwave and a separate oven. There is also a fridge-freezer with three drawers, a dishwasher and plenty of storage space thanks to the handleless cabinets with wide drawers. The kitchen is finished in matte white and finished with a sleek black composite worktop.

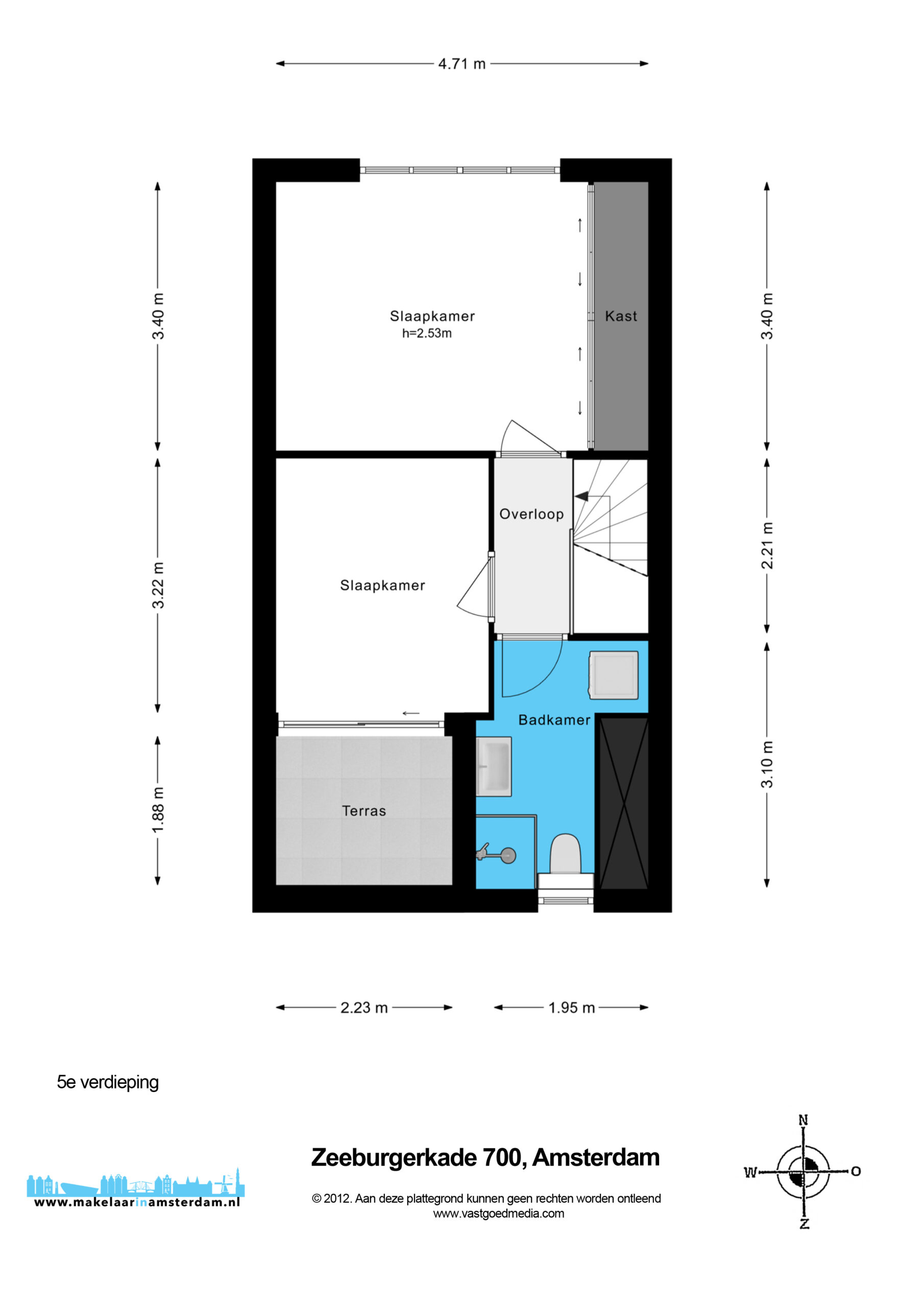
On the fifth floor are two well-sized bedrooms. The master bedroom is located on the waterfront and offers stunning views, while the second bedroom provides access to the sunny south-facing roof terrace.

The modern bathroom with Portuguese floor tiles features a walk-in shower, sink cabinet, toilet and space for washer and dryer.
There is no shortage of storage space: there is an indoor storage room in the apartment as well as a spacious private storage room on the first floor.

Parking
Residents and their visitors can park for free under the former loading dock of the warehouse. It is also possible to apply for a parking permit without waiting time (cost: € 192.81 per half year).

Leasehold
The leasehold situation could not be better. In fact, it is already fully and perpetually redeemed.

HOA:
The owners’ association is healthy and active. The property is well maintained. There is a multi-year maintenance plan and the contribution is €267.50 per month.

Surroundings
The Zeeburgerkade is located in the popular Eastern Docklands area: quiet, watery and with a mix of monumental warehouses and modern architecture. In the neighborhood you will find plenty of cozy restaurants such as The Harbour Club, The Niu and the new hotspots on Cruquius Island. For daily shopping, there is shopping center Brazil, and the Dappermarkt and Javastraat are also nearby.
Nature lovers can go to the Flevopark or to the swimming jetties along the harbor. By bike you can be in the center in ten minutes, and via the Piet Hein tunnel you are on the A10 in no time.

The main features:
– perpetual bought off ground leasehold
– upper floors
– Unobstructed views over the Entrepothaven
– Balcony and sunny roof terrace
– Two good bedrooms
– Bathroom and kitchen from 2023
– Nice open kitchen with lots of workspace
– Lovely bathroom with cheerful portuguese floor tiles
– Well maintained and can be moved in immediately
– Elevators present
– Large private storage room on the first floor in the garage
– Free parking under the loading dock, and city permit without waiting list
– Energy label C
– Active and healthy HOA (professionally managed, MJOP present)
– Service costs approx. €267.50 per month
– Delivery in consultation, can be made immediately

Kenmerken

Overdracht

  • Asking price: € 599.000 k.k.
  • Status: Under bid
  • Aanvaarding: By arrangement, can be fast
  • Bijdrage VvE: € 267 per maand

Bouw

  • Soort woning: Maisonette
  • Type woning: Apartment
  • Bouwjaar: 1905
  • Type dak: Flat roof with bituminous roofing

Oppervlakten en inhoud

  • Woonoppervlakte: 82m2
  • Gebouwgebonden buitenruimte: 6 (balcony and roof terrace)m2
  • Inhoud: 253 m3

Indeling

  • Kamers: 3 kamers
  • Slaapkamers: 2 kamers
  • Badkamers: 1 kamer
  • Verdiepingen: 2
  • Aantal woonlagen 2
  • Gelegen op Woonlaag fourth and fifth floors
  • Voorzieningen Elevator, mechanical ventilation and TV cable

Energie

  • Energielabel C
  • Isolatie Double glazed and fully insulated
  • Verwarming boiler
  • Warm water boiler
  • CV ketel Remeha Tzerra (gas fired combi boiler from 2023, Owned)

Buitenruimte

  • Ligging: On a quiet road, near water, in a residential area and with open views

Parkeergelegenheid

  • Parkeerfaciliteiten Parking on VvE property, paid parking and parking permits

VvE checklist

  • Bijdrage VvE: € 267 per maand
  • Inschrijving KvK Yes
  • Jaarlijkse vergadering Yes
  • Reservefonds aanwezig Yes
  • Onderhoudsplan Yes, MJOP present
  • Opstalverzekering Yes

Plattegrond(en)

3D weergave

Video

Locatie

Streetview

Klik/tap om te kunnen zoomen

Stay informed

Contact us

If you have any questions or would like to make an appointment, please contact us. If you would like to be kept up to date with the latest news, please send us your details!

  • By using the contact form you agree with the processing of your personal data according to our privacyverklaring
Questions or would you like to make an appointment?

Send us a message on Whatsapp